Trong xu hướng xây dựng nhà phố, phong cách tân cổ điển luôn giữ được vị thế riêng nhờ sự tinh tế, sang trọng và giá trị vượt thời gian. Mẫu nhà ở tân cổ điển 3 tầng 4x14m dưới đây là một trong những thiết kế nổi bật, được nhiều chủ đầu tư tại TPHCM yêu thích bởi sự kết hợp hoàn hảo giữa thẩm mỹ nghệ thuật và công năng sống tiện nghi.

Mẫu Nhà Tân Cổ Điển 3 Tầng 4x14m – Không Gian Sống Đẳng Cấp
Mẫu nhà tân cổ điển 3 tầng – Vẻ đẹp tinh xảo và đậm chất quý phái
Mặt tiền nhà phố tân cổ điển gây ấn tượng mạnh mẽ với kiến trúc châu Âu được thể hiện qua hệ cột trụ tròn đăng đối, vòm cửa cong mềm mại và phù điêu hoa văn tinh tế. Màu trắng chủ đạo làm nổi bật các chi tiết phào chỉ, tạo cảm giác thanh lịch và cao sang.
Ban công uốn cong duyên dáng với lan can sắt nghệ thuật sơn vàng ánh kim giúp mặt tiền thêm phần sang trọng. Cửa chính vòm cung lớn kết hợp kính lấy sáng, tạo cảm giác rộng mở và bề thế.
Phần mái được thiết kế cầu kỳ với hệ mái vòm, phù điêu đắp nổi và tượng trang trí mang đậm tinh thần hoàng gia. Cổng rào sử dụng nhôm đúc hoa văn cổ điển màu đồng, góp phần tôn lên vẻ uy nghi, đẳng cấp cho toàn bộ công trình xây dựng
Tổng thể ngôi nhà là sự hòa quyện tinh tế giữa tính đối xứng, tỷ lện vàng và nghệ thuật trang trí tinh xảo – tất cả tạo nên diện mạo đậm chất quý tộc ngay giữa lòng đô thị hiện đại.

Mẫu Nhà Tân Cổ Điển 3 Tầng 4x14m – Không Gian Sống Đẳng Cấp
>>> Tham khảo đơn giá xây dựng nhà TP.HCM:
Bố trí công năng hợp lý, tối ưu không gian sống
Không chỉ nổi bật về thẩm mỹ, mẫu nhà 1 trệt lửng 1 lầu tum sân thượng 4x14m còn được kiến trúc sư tính toán kỹ lưỡng công năng sử dụng, đáp ứng nhu cầu sinh hoạt của gia đình từ 4 đến 6 thành viên.
Tầng trệt – Không gian mở và kết nối thiên nhiên
Ngôi nhà có thiết kế sân trước rộng thoáng, có thể bố trí tiểu cảnh nhỏ hoặc chỗ đậu xe tiện lợi cho gia đình. Đi vào phía trong ngôi nhà là khu vực trống đa năng, dễ dàng linh hoạt thành phòng sinh hoạt chung, khu vực để xe trong nhà, dễ dàng linh hoạt thành căn phòng phù hợp với nhu cầu sử dụng của gia đình. Vị trí đặt nhà vệ sinh được bố trí gọn gàng dưới chân cầu thang, tiết kiệm diện tích mà vẫn thuận tiện cho sử dụng.
Đặc biệt, thiết kế phòng khách chính nằm cuối nhà, kết hợp tiểu cảnh sân sau mang lại không gian thư giãn, thoáng má và gần gũi với thiên nhiên – một điểm nhấn đáng giá trong thiết kế nhà phố hiện nay. Vị trí phòng khách ngay bên dưới khoảng thông tầng lửng tạo cảm giác thông thoáng, sang trọng, thể hiện đẳng cấp của gia chủ.

Bản vẽ thiết kế mặt bằng tầng trệt
Tầng lửng – Không gian bếp sang trọng và thoáng sáng
Phòng bếp – ăn thiết kế hướng ra ban công trước nhà, đón nắng và gió tự nhiên, giúp không gian nấu nướng luôn khô thoáng và sạch sẽ. Vị trí giếng trời đặt song song với sảnh thang giúp ánh sáng tràn ngập đến các vị trí, ngóc ngách trong ngôi nhà.

Bản vẽ thiết kế mặt bằng tầng lửng
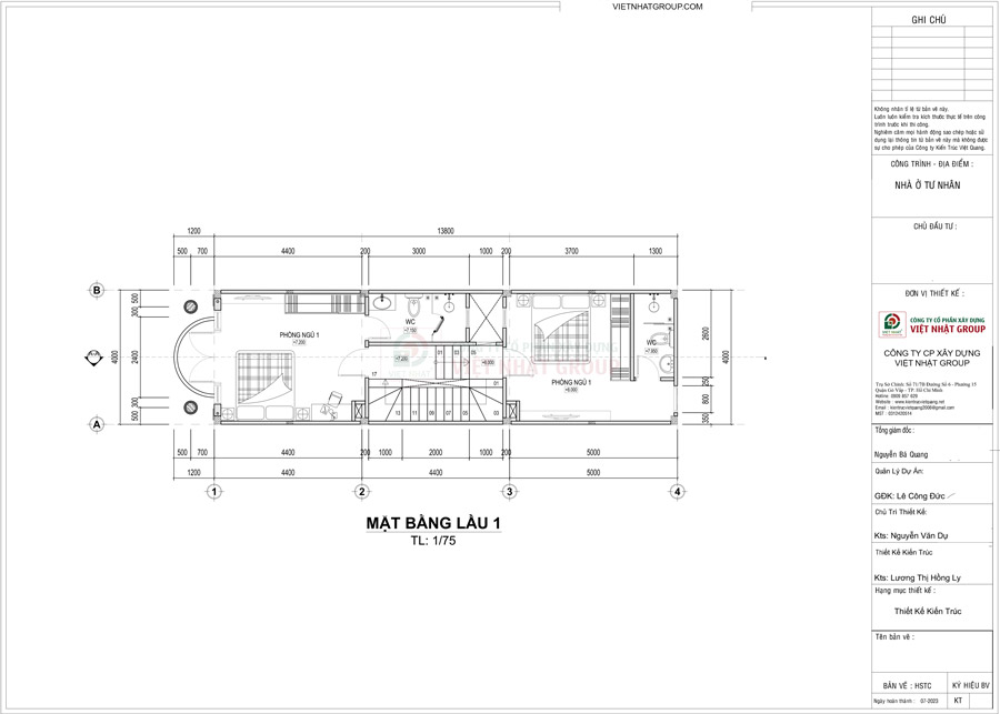
Lầu 1 – Khu vực nghỉ ngơi riêng tư
Bố trí lầu 1 làm khu vực nghỉ ngơi riêng gồm 02 phòng ngủ rộng rãi, mỗi phòng đều có WC khép kín, đảm bảo sự riêng tư và tiện nghi tối đa cho từng thành viên. Cửa sổ và ban công được bố trí hợp lý, giúp mỗi căn phòng đều đón được ánh sáng tự nhiên và không khí trong lành.

Bản vẽ thiết kế mặt bằng lầu 1
Tầng thượng – Không gian tâm linh và thư giãn
Vị trí cao nhất của ngôi nhà là không gian tâm linh và thư giãn lý tưởng dành cho các thành viên trong gia đình. Phòng thờ đặt ở vị trí nghiêm trang, hướng ra phía trước nhà theo phong thủy tốt. Phía trước là sân thượng rộng thoáng, có thể bố trí bàn trà, cây cảnh, hoặc làm khu nghỉ ngơi ngoài trời. Phía sau bố trí khu vực giặt – phơi, đảm bảo sự tiện lợi và kín đáo cho sinh hoạt gia đình.

Bản vẽ thiết kế mặt bằng tầng thượng
Mẫu nhà ở lý tưởng cho chủ đầu tư tại TPHCM
Trong điều kiện quỹ đất rộng 4x14m phổ biến tại các khu đô thị hiện nay, thiết kế này mang đến giải pháp xây dựng nhà phố tối ưu – vừa đảm bảo diện tích sử dụng, vừa giữ được giá trị thẩm mỹ cao. Ngôi nhà không chỉ là nơi ở mà còn thể hiện gu thẩm mỹ, vị thế và đẳng cấp của gia chủ.
Đối với các chủ đầu tư, mẫu nhà tân cổ điển 3 tầng là lựa chọn lý tưởng khi hướng đến phân khúc nhà ở cao cấp, hoặc mô hình nhà cho thuê dạng boutique house – vừa sang trọng, vừa có giá trị khai thác lâu dài.
Ưu điểm nổi bật của mẫu nhà Tân Cổ Điển 3 tầng 4x14m
- Kiến trúc sang trọng, trường tồn theo thời gian
- Công năng khoa học, phù hợp với gia đình trẻ yêu thích vẻ đẹp sang trọng và tiện nghi
- Tối ưu ánh sáng và lưu thông gió tự nhiên cho ngôi nhà
- Thích hợp xây dựng nhà tại các quận trung tâm TP.HCM
- Tăng giá trị bất động sản nhờ phong cách kiến trúc đẳng cấp và chi tiết hoàn thiện tinh xảo
Mẫu nhà ở tân cổ điển 3 tầng 4x14m là sự lựa chọn hoàn hảo cho những ai yêu thích vẻ đẹp sang trọng, tinh tế và muốn khẳng định phong cách sống đẳng cấp. Công trình không chỉ đẹp về kiến trúc mà còn đáp ứng đầy đủ công năng, tiện nghi và giá trị lâu dài – một lựa chọn xứng tầm cho các chủ đầu tư tại Tp.HCM.
Từ khóa: xây nhà trọn gói | giá xây nhà | sửa nhà trọn gói | báo giá sửa nhà | xây nhà phần thô | giá xây nhà phần thô































































